Klosterneuburger Straße
1200 Wien
200.70  m²
3,397.60 €
Beschreibung
1200 Wien, Klosterneuburger Straße 43 / Ecke Othmargasse 17

Die Immobilie befindet sich in zentraler Lage in unmittelbarer Nähe zum Wallensteinplatz. Die frequentierte Klosterneuburger Straße ist eine belebte Geschäftsstraße, die zur Wallensteinstraße führt.

Die öffentliche Verkehrsanbindung ist sehr gut (U4, sowie die Straßenbahnlinien D, 5, 31, und 33 — alles binnen weniger Gehminuten). Auch in punkto Nahversorgung ist das Gebiet rund um das Objekt sehr gut erschlossen.

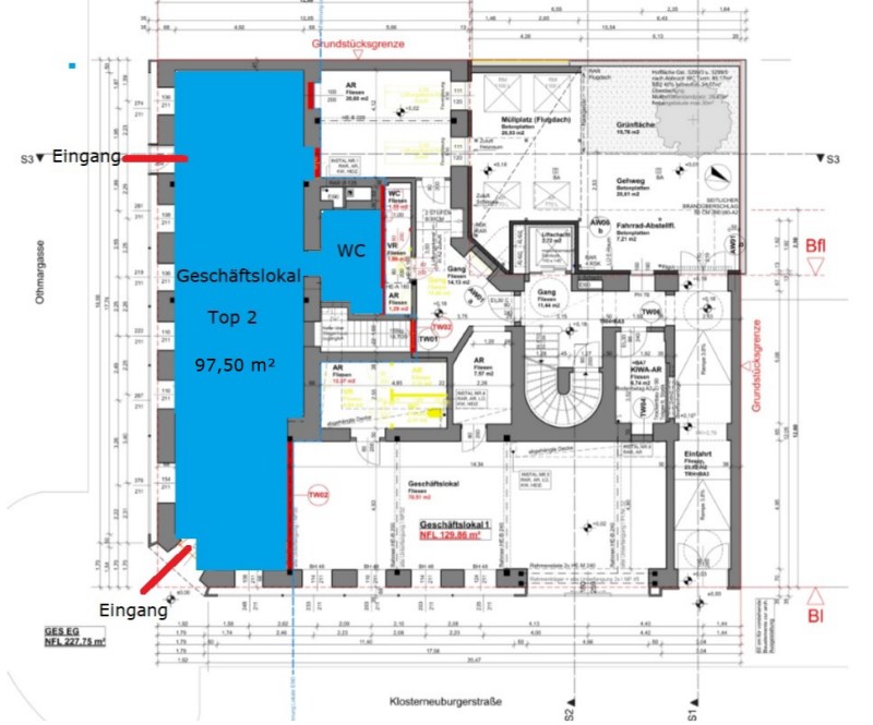
Das Geschäftslokal besteht aus einem großen Verkaufsraum mit einer langen Schaufensterfront zur Othmargasse und Eckeingang Klosterneuburger Straße.

Bisher wurde das Geschäftslokal als Bäckerei genutzt. Gastronomie möglich.

Das Mietobjekt wurde mit neuen Boden (Stahlbeton), ebenerdig zum Gehsteig und Fußbodenheizung ausgestattet.
Es gibt die Möglichkeit, einen Lastenlift zwischen Erdgeschoss und Lager einzubauen.


Erdgeschoss mit 97,15 m² : großer Verkaufsraum mit einer langen Schaufensterfront zur Othmargasse und Eckeingang Klosterneuburger Straße.

Untergeschoss Magazin mit 103,55 m² : Lagerflächen, begehbar über das Stiegenhaus. Deckenhöhe 2,00 Meter im Untergeschoss.

Sonstiges : EG-Fläche barrierefrei zum Gehsteig, EG-Stahlbetonboden, Fußbodenheizung, Abluftsystem (über Dach) für Entlüftungsanlage, Raumhöhe 3,70 Meter im EG

2 Eingänge (Kunden : Eckeingang zu Klosterneuburgerstraße; Anlieferung : seitlich zu Othmargasse)

Kaution: 6 Bruttomonatsmieten

Schanigarten: beidseitig entlang Eckeingang möglich.
Behördenabstimmung/-genehmigung notwendig.

Mietdauer: befristet - 5 - 10 Jahre

Mietbeginn : nach Vereinbarung

Vertragssteuer zahlt der Mieter
Kein Vermittlungshonorar für Mieter.

Energieeffizienz C / HWB 74,00 / fGEE 1,25 gültig bis 08.08.2034

Kontakt : Mag. Martin Westendorf
+43-1 / 532-1868 / 17
+43-699 / 1-341-8811
mw@vermont.at
Spezifikationen

Objektnummer

123/00935

Verkaufstyp

Mietung

Immobilientyp

Geschäfte - Lokale

Straße

Klosterneuburger Straße

PLZ

1200

Ort

Wien

Bundesland

Wien

Land

Österreich

Größe in m²

200.70 m²

Energieklasse

C

Heizwärmebedarf

74.00 kWh/m²a

Energieeffizienz-Klasse

C

Energieeffizienz-Faktor

1.25

Preis

3,397.60 €
Lage
Pläne
Objektanfrage: Klosterneuburger Straße

Objektnummer

123/00935

Verkaufstyp

Miete

Immobilientyp

Geschäfte - Lokale

Wir schützen unsere Formulare mit einem reCAPTCHA-Service zur Unterscheidung von Computern und Menschen. Mehr Infos

Wenn Sie damit einverstanden sind und Ihre Daten senden möchten, klicken Sie bitte auf:

(Speichert ein Cookie)